dom w Michałowie:

  projekt domu nowoczesnego

lokalizacacja| :

Tarnopol, woj podlaskie

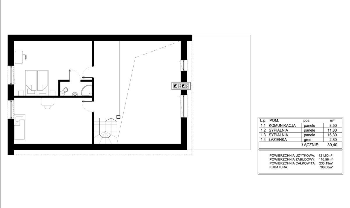
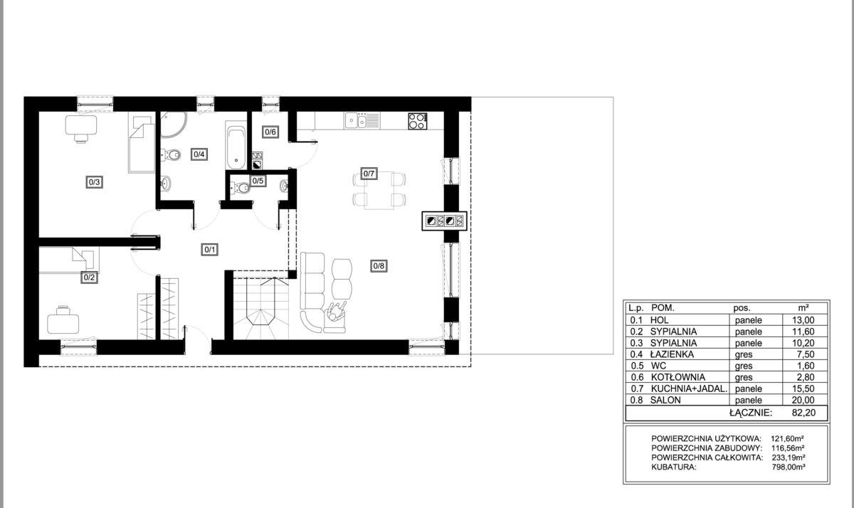
pow. użytkowa | :

 121,60m2

inwestor| :

 prywatny

projekt | :

 2018

realizacja | :

 2018-

opis| :

Projekt domu nowoczesnego z dachem dwuspadowym. Parter budynku w drewnianej szalówce, zawarty w białej ramie. Dach bezokapowy, z jednej strony czysty biały szczyt, z drugiej duże przeszklenia na krajobraz leśny.