dom w Jurowcach:

projekt nowoczesnej stodoły

lokalizacacja | :

 Jurowce, woj podlaskie

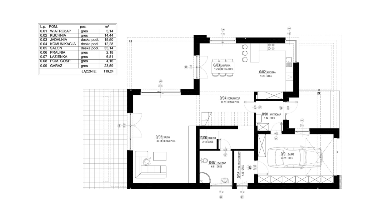
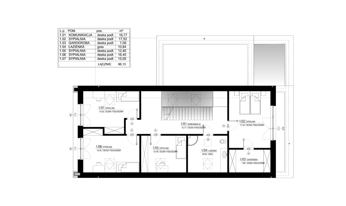
pow. użytkowa | :

 179,39m2

inwestor | :

 prywatny

projekt | :

 2019

realizacja | :

 2020

opis| :

Projekt budynku – nowoczesnej stodoły. Rozłożysta bryła parteru z bezokapowym  dachem poddasza. Efektowny nawis nad tarasem oraz szeroka biała rama nad częścią wejściową powodują, że dom zyskuje niesztampową formę. Układ z obszerną kuchnią i sporym salonem, przewidziano stalowe schody na poddasze, dzięki którym wnętrze zyska na nowoczesności. Elewacja została ocieplona deską elewacyjną w kolorze modrzewia syberyjskiego.