dom w Henrykowie

 projekt nowoczesny, rozbudowa domu jednorodzinnego

lokalizacacja: |

Henrykowo, woj podlaskie

pow. użytkowa: |

 218,90m2

inwestor: |

 prywatny

projekt: |

 2018

realizacja: |

 2018-

opis: |

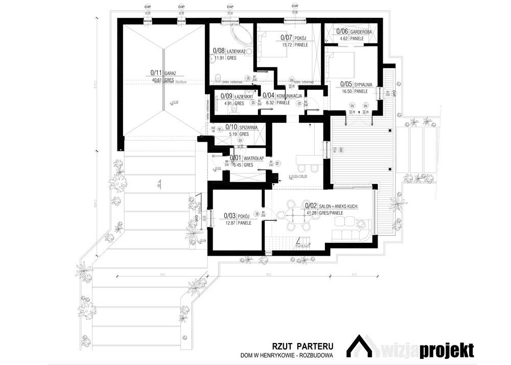
projekt rozbudowy domu jednorodzinnego w okolicach Białegostoku. Przed rozbudową był to nieduży (ok. 80m2)  typowy budynek mieszkalny z dwuspadowym dachem. Nowoczesnego charakteru nabrał poprzez usunięcie okapów. Do budynku dobudowano  dwie przenikające przez istniejący budynek prostopadłościenne bryły. Elewację istniejącej części pokryto szalówką pionową o różnej szerokości produkowaną przez inwestora.