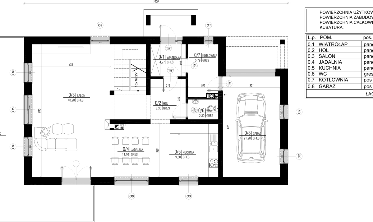
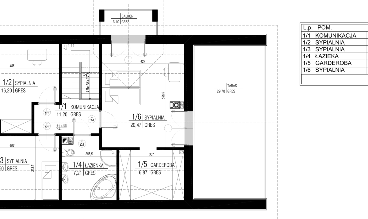
Projekt budynku dwukondygnacyjnego z poddaszem. Budynek zaprojektowano z wbudowanym garażem. Dach dwuspadowy z zaakcentowanym wejściem. Nad garażem architekci zaprojektowali taras z wyjściem z sypialni. Ciepła kolorystyka budynku pozwala na wkomponowanie się w każde otoczenie. Projekt w tradycyjnej formie z nutą nowoczesności.