dom w Dubinach  :

 projekt domu nowoczesnego z poddaszem

lokalizacacja | :

Dubiny, woj podlaskie

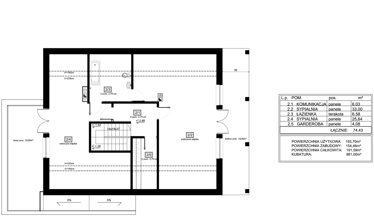
pow. użytkowa | :

193,70m2

inwestor | :

 prywatny

projekt | :

 2016/2017

realizacja | :

 2017/2018

opis| :

Projekt budynku nowoczesnego z użytkowym poddaszem w gm. Hajnówka. Główna bryła budynku przenika się z bryłą wejścia i garażu. W projekcie zastosowano okładziny elewacyjne, drewniane i płyty betonowe, przez co cały dom wpisuje się w tradycyjną architekturę otoczenia, jednocześnie zachowując swój nowoczesny styl. Architekt przewidział duży taras nad garażem oraz mniejszy od strony ogrodu.