dom w Bobrówce :

  projekt domu parterowego typowego

lokalizacacja | :

Bobrówka, woj podlaskie

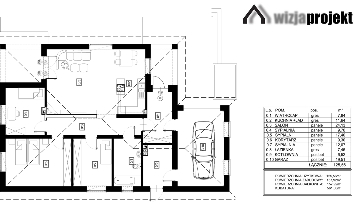
pow. użytkowa | :

129,45m2

inwestor | :

 prywatny

projekt | :

 2018

realizacja | :

 2019-

opis| :

Projekt domu parterowego zleconego w Białymstoku. Zwarty układ budynku idealnie wkomponował się w działkę i zalecenia inwestorów. Nasi architekci z Białegostoku zastosowali na elewacjach cegłę klinkierową w jasnym odcieniu. Cały budynek utrzymany jest w ciepłych kolorach. Duże okna balkonowe zapewniają sporo światła wewnątrz pomieszczeń. Projekt zachowany w nowoczesnym stylu, charakterystycznym dla parterowych realizacji.