dom na skraju lasu

    projekt domu nietypowy, oryginalny, nowoczesny

lokalizacacja|

 woj mazowieckie

pow. użytkowa|

 181,01m2

inwestor|

 prywatny 

projekt|

 2016

realizacja|

 2017/2018

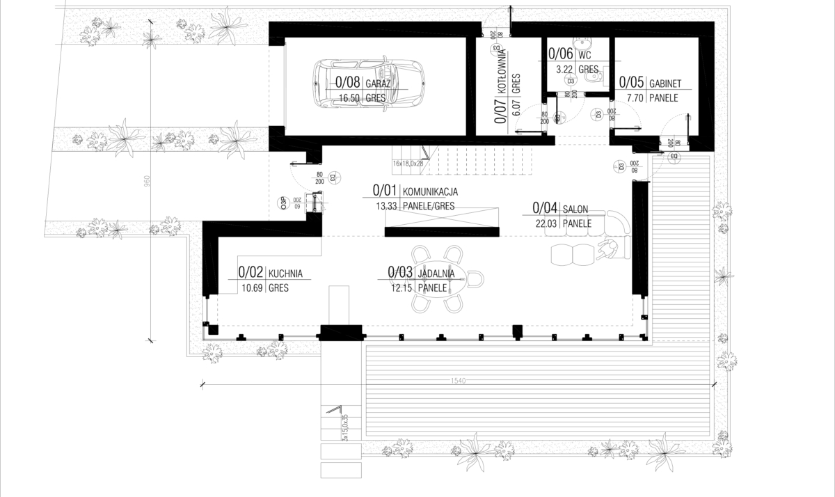
opis|

nowoczesna architektura domu z płaskim dachem,  duże przeszklenia od południowej strony. Elewacja osłonięta ażurową konstrukcją wiklinową. Projekt domu doskonale wkomponowuje się w pejzaż leśny.                                    Program funkcjonalny: otwarty parter z pokojem dziennym jadalnią oraz kuchnią, mały gabinet, wc, kotłownia oraz garaż. Druga kondygnacja to cztery sypialnie, przestronna łazienka oraz komunikacja.