dom na lipinach |

 projekt domu nowoczesnej stodoły

lokalizacacja | :

Lipiny, woj. Podlaskie

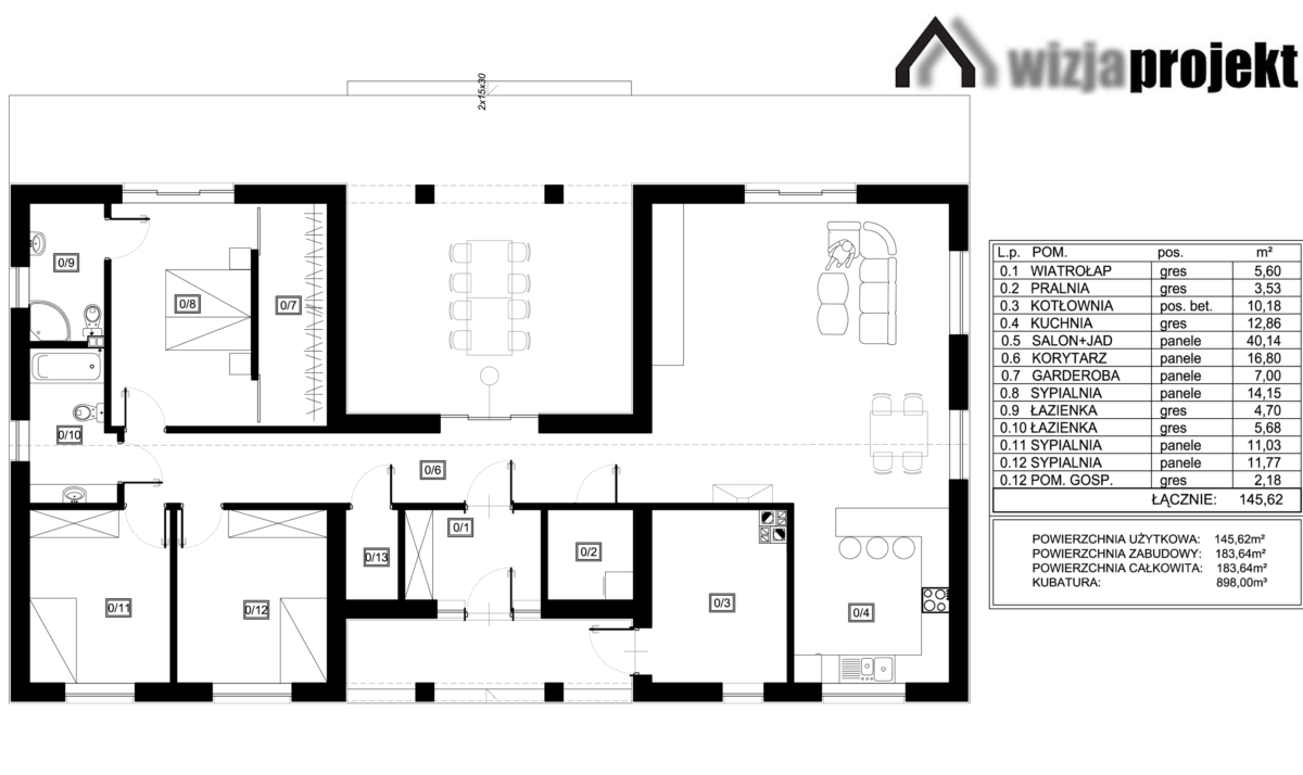
pow. użytkowa | :

145,62m2

inwestor | :

 prywatny

projekt | :

 2018

realizacja | :

 2018-

opis| :

Projekt domu nowoczesnej stodoły. Budynek parterowy, murowany, elewacja drewniana. Projektant użył deski pionowej w szarej tonacji, przełamanej jasnym, ciepłym kolorem drewna. Budynek przykryty dachem dwuspadowym. Projekt zakłada zainstalowanie rekuperacji oraz paneli fotowoltaicznych.  Projekt budynku zlokalizowno w uroczym położeniu wsi Lipiny.